New Listing!
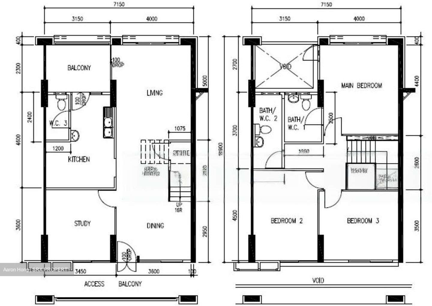
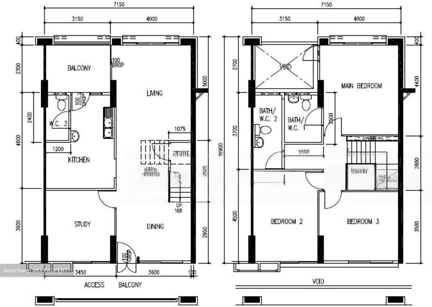
2 Storey Executive Maisonette
Located on Top Floor with Lift Level
Spacious area of 146sqm (1571sqft)
3 Spacious Bedroom plus Dining Room & Helper Room (Can convert into 4 Spacious Bedroom)
Nicely Renovated
Main Door Faces NorthEast, Hall enjoys SouthWest exposure
Abundant natural light and refreshing breezes
Fully Air-conditioned for maximum comfort
Within 1km radius of St Hilda's & Poi Ching Primary School
Just beside JunYuan Secondary
Near United World College (UWCSEA)
Walking distance to Supermarket and many more Eateries & Amenities
Contact Aaron at 9431-5357 for an Exclusive Viewing Opportunity!