*** FOR RENT : 4 BEDOOMS + STUDY @ SKYPARK RESIDENCES (D27) ***
SPACIOUS, CORNER, POOL FACING, FULL FURNISHED!
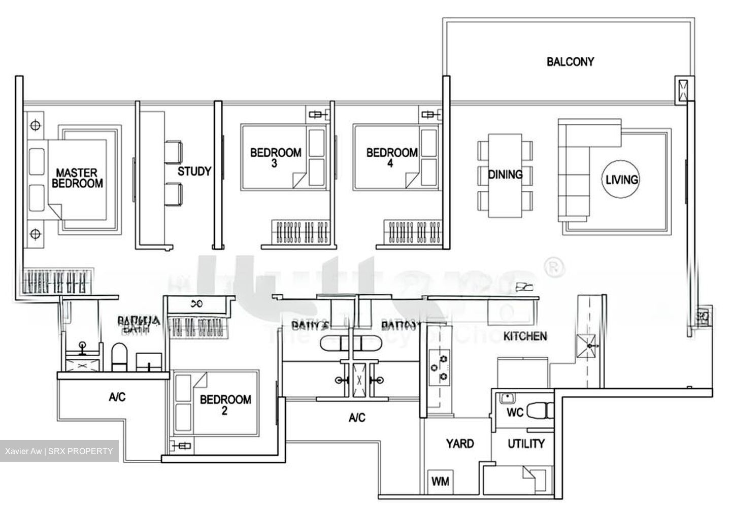
● 4 Bedrooms (2 Ensuites) + Study + Utility / Helper's Room + Helper's Toilet
● 1,528sqft
● Full Furnished with White Goods
● With Spacious Balcony
● Enclosed Kitchen & Yard
● Corner
● Pool Facing
● No West Sun
● Renovated
● Mins Walk to Sembawang MRT, Sun Plaza & Bukit Canberra - ActiveSG, Hawker Food Centre & Upcoming Polyclinic
● Within Proximity to Sembawang Shopping Centre, Canberra Plaza, Sembawang Park
● Well Connected via SLE - BKE / CTE
● Move-in Condition
● 2 Years Preferred
● Available from 1 Feb 26
CALL Xavier 9.8.2.8.8.9.9.8 / Juliana For An Exclusive Viewing Appointment!
Primary Schools Within 1km:
● Canberra Primary
● Sembawang Primary
● Wellington Primary
fb. com/XJRealtor
#XJVirtualTour
Parc Lift, Canberra Residences, Brownstone, Nautical, Visionaire, Watergardens, Yishun Sapphire, Yishun Emerald, Eight Courtyards, One Canberra, Seletaris, Sensoria, Countryview, Goldwood Gardens, Springhill, Victory 8, Northwave, Northoaks, Woodsvale, Northpark, Nine Residences, Symphony, The canopy, criterion, signature at yishun, estuary