REALVOLUTION SG EXCLUSIVE
HIGHLIGHTS
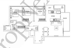
- 3 Bed 2 Bath
- 1033 sqft
- High floor
- Main door facing SE
- Connecting balcony from living room to kitchen
- Comes with utility room/helper’s room with window
- Well maintained condition
- Partial furnished
- Available early Nov 2025
NEARBY
- Admiralty MRT (4 bus stops)
- Woodlands South MRT (6 bus stops)
- Woodlands Glen coffeeshop
- Woodlands Glen 24 hrs Sheng Shiong
- Koufu Food HQ
- 888 Plaza
- S11 Woodlands 630 Food House
- Admiralty Place (Wet Market)
- Kampung Admiralty Hawker
SCHOOLS
- Woodlands Ring Primary/Secondary
- Greenwood Primary
- Woodgrove Secondary
- Spectra Secondary
- Republic Poly
- Singapore American School