Nathan Suites Condo. 21 Nathan Rd.
Luxury. Stunning views. $4.3m
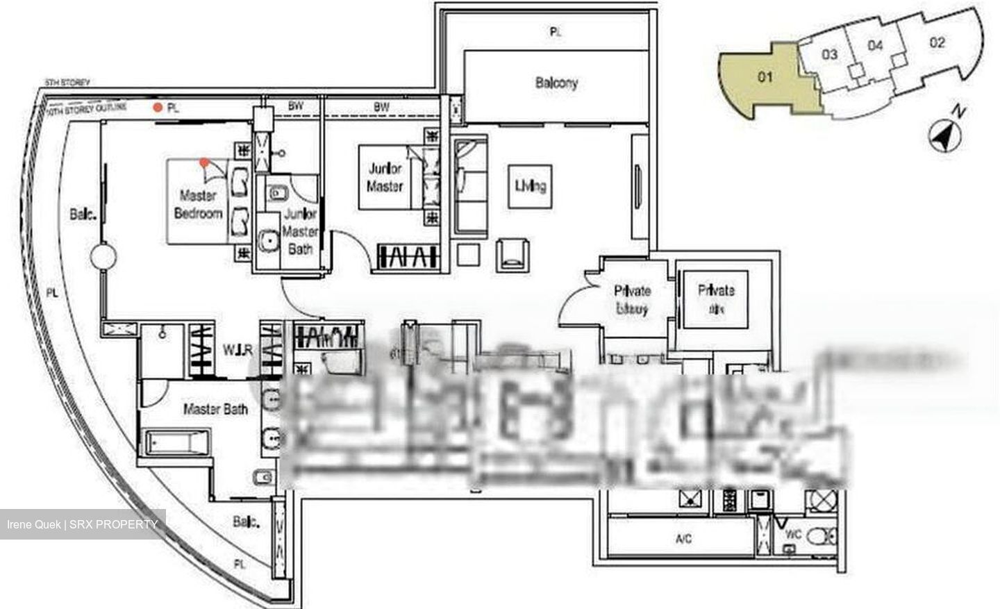
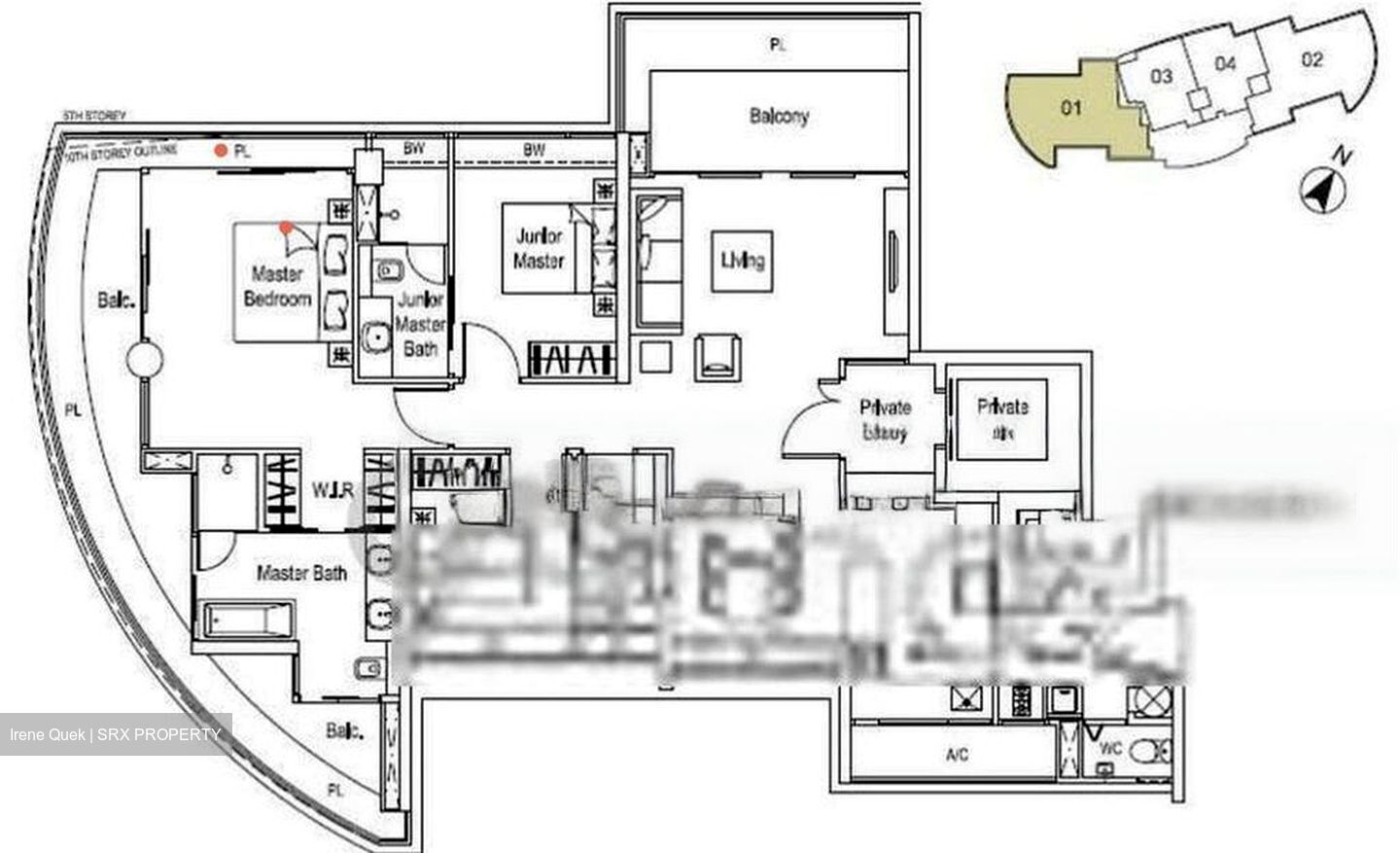
Private Lift. Private Glass Lobby.
3 Spacious bedrooms - 3 are Ensuites.
4 Bathrooms. Bathtub. 2 facial basins.
1 helper room or store Rm
Dry & wet kitchens
Balcony
Top Branded Appliances.
Ducted Aircons
550m to 600m walk to Great World City mall & MRT.
250m to Valley Point malls, NTUC, shops, foods.
Famous Zion food Centre.
Short drive to Orchard, International Schools, primary secondary schools, Embassy. Within 1 KM.
High floor views pool, landed enclaves,
High end function room, gym room, steam room, day beds sun tanning area. 24 hr security.